

3068 WD, ROTTERDAM
G.B. Shawplaats 264 te Rotterdam – Seniorenwoning 60 m² - Woonzorglocatie Laurens Nijeveld
Woonzorglocatie:
Laurens Nijeveld is een woonzorglocatie voor ouderen met een minimale leeftijdgrens van 65 jaar. De locatie bevindt zich in de wijk Ommoord in het noordwesten van Rotterdam, en kenmerkt zich door een vriendelijke en open sfeer. De bewoners komen voornamelijk uit de omgeving. Door de aanwezige faciliteiten, waar buurtbewoners ook graag gebruik van maken, maakt de locatie echt deel uit van de buurt.
Kenmerken:
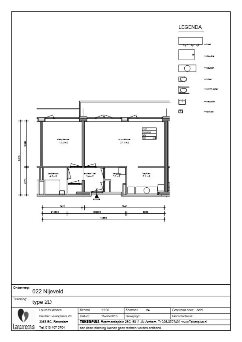
- Seniorenwoning van 60 m² (Let op: minimale leeftijdsgrens van 65 jaar)
- 5e verdieping
- Een slaapkamer en keuken
- Badkamer en toilet
- Ligging aan de voorzijde
Laurens Nijeveld:
Laurens Nijeveld is een gezellige locatie in de rustige en groene wijk Ommoord. Bewoners komen voornamelijk uit omliggende wijken. Er is veel privacy en een naar eigen smaak in te richten appartement. Talrijke faciliteiten en activiteiten, waar buurtbewoners ook graag gebruik van maken en een ontmoetingsplein en terrassen in Italiaanse sferen.
De omgeving:
Ons verzorgingshuis staat aan de rand van een park en is omgeven door veel groen. De buurt straalt rust en natuurlijke schoonheid uit. Er zijn genoeg mogelijkheden om te gaan uiteten en te winkelen, maar ook voor sport en recreatie. Elke woensdag is er markt voor de deur. Onze locatie is goed bereikbaar. Het metrostation Hesseplaats ligt op loopafstand en er is genoeg parkeerruimte.
Voorwaarden:
- Een minimale leeftijdsgrens van 65 jaar
- De inschrijfprocedure zal door Laurens Entree worden uitgevoerd
- Screening zal onderdeel uitmaken van dit inschrijfproces
Door het invullen van dit formulier maak je jouw persoonlijke (gratis) account aan als woningzoeker en ontvang je een uitnodiging voor MyProperty.
Heb je al een MyProperty account? Dan wordt deze reactie toegevoegd aan jouw bestaande account.