

2496 HC, 'S-GRAVENHAGE
Buizerdlaan 56 | Den Haag / Ypenburg | Eengezinswonign woning met drie woonlagen
Reageren en selectie:
U kunt alleen online reageren op deze woning. Doe dit via de ‘reageer’-knop onderaan de pagina van de advertentie op onze website.. Wij maken een selectie van de kandidaten die kunnen bezichtigen. Bezichtigingsaanvragen per e-mail of telefoon nemen wij niet in behandeling.
Indeling:
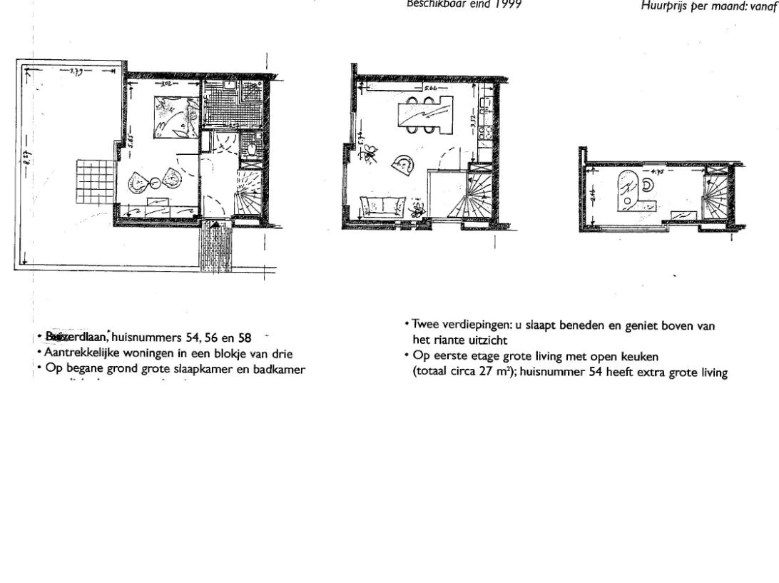
Deze speelse en gerenoveerde woning heeft een woonoppervlak van circa 80 m². Op de begane bevindt zich een grote slaapkamer en de badkamer. Op de tweede woonlaag bevindt zich een grote living van 27 m² met open keuken en trap naar de laatste woonlaag. Daar ligt nog een grote slaapkamer van 13 m² met een groot raam waardoor de ruimte heerlijk licht is!
Kenmerken:
- Speelse woning met drie woonlagen (80 m²)
- Gerenoveerde open keuken voorzien van kookapparatuur
- Gerenoveerde badkamer voorzien van douche en wasmachineaansluiting
- Klein terras aan de voorzijde van de woning gesitueerd op het westen
- Verwarming en warm water door middel van stadsverwarming
Huurvoorwaarden:
De voorwaarden die wij stellen aan u als nieuwe huurder van een woning in ons beheer kunt u op onze website terugvinden. In het hoofdmenu bovenaan de site onder het kopje “FAQ & downloads” kunt u meer informatie vinden over deze voorwaarden.
Aan de inhoud van deze informatie is de grootst mogelijke zorg besteed. Alle informatie is nadrukkelijk onder voorbehoud. Hieraan kunnen geen rechten worden ontleend.
Door het invullen van dit formulier maak je jouw persoonlijke (gratis) account aan als woningzoeker en ontvang je een uitnodiging voor MyProperty.
Heb je al een MyProperty account? Dan wordt deze reactie toegevoegd aan jouw bestaande account.